Ingatlan adatlap
• Ár: 2.800 Ft / hó.
• Négyzetméterár: 18 Ft
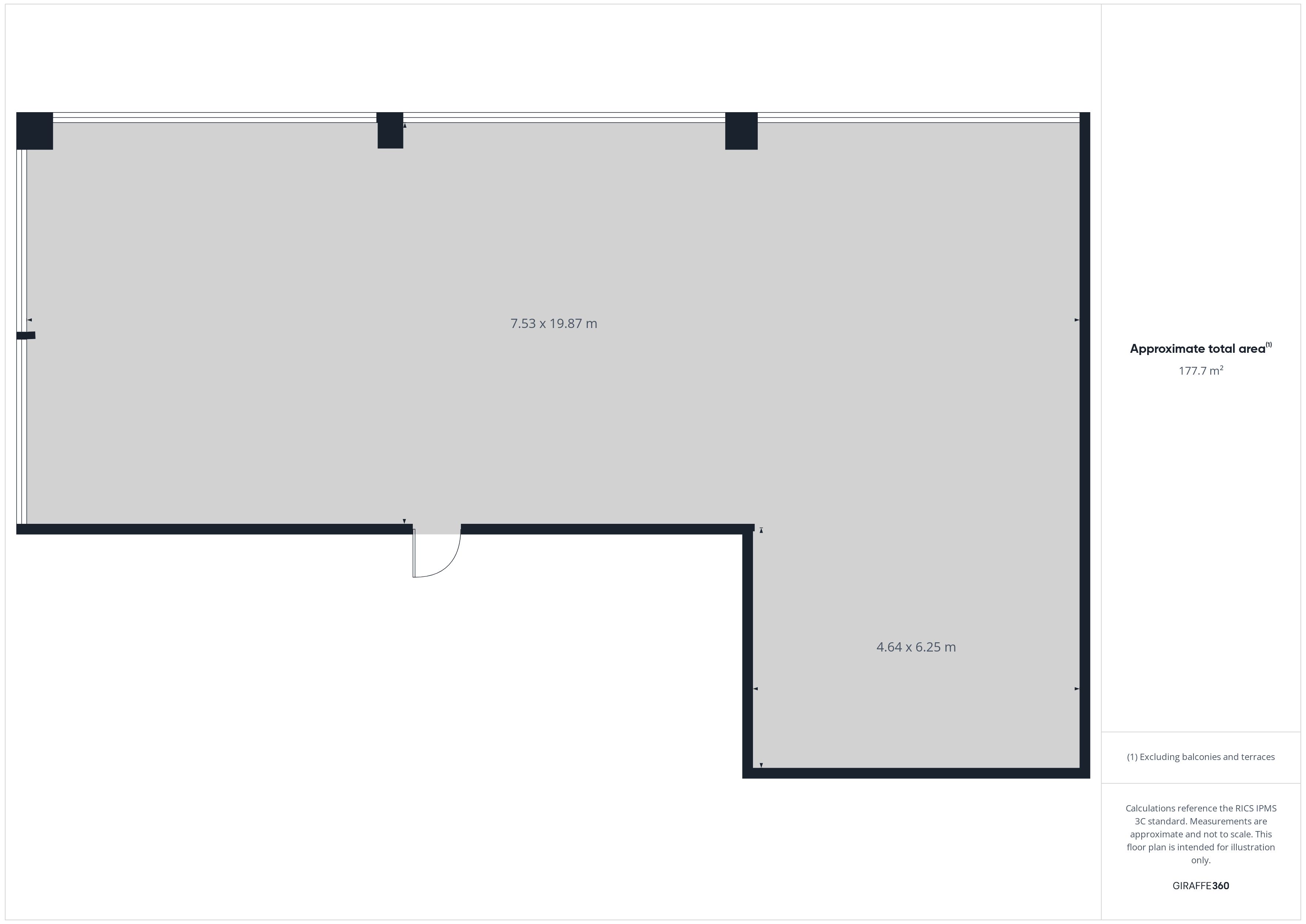
• Hivatalos alapterület: 152 m2
• Nettó alapterület: 152 m2
• Típus: Iroda
• Város: Alsónémedi
• Emelet: 2
• Kilátás: kert
• Épület típusa: Modern
• Parkoló helyek: 1
• Fényviszonyok: sunny
• Emelet: 2
• Elektromosság: 1
• Víz: 1
• Szennyvíz: 1
Ingatlan leírása
• Alapterület: 152 m² (igény esetén bővíthető 231 m²-ig)
• Állapot: fit-out nincs kész, a bérlő igényei szerint alakítható. A kialakításhoz a tulajdonos tárgyalás és megállapodás alapján hozzájárulhat.
• Fűtés-hűtés: fan coil rendszer
• Közös használat: központi épületrészben kis- és nagytárgyaló (foglalásos rendszerrel), konyha, ebédlő és egyéb közös területek
• Állapot: fit-out nincs kész, a bérlő igényei szerint alakítható. A kialakításhoz a tulajdonos tárgyalás és megállapodás alapján hozzájárulhat.
• Fűtés-hűtés: fan coil rendszer
• Közös használat: központi épületrészben kis- és nagytárgyaló (foglalásos rendszerrel), konyha, ebédlő és egyéb közös területek
Lokáció leírása
Alsónémedi frekventált részén, az Öregországút utca mentén található az iroda, amely kiváló közlekedési kapcsolatot biztosít Budapest és az agglomeráció irányába.
Az ingatlan az 5-ös főúttól mindössze 3 percre, valamint az M5-ös és az M0-s autópályától 6 percre helyezkedik el, így autóval rendkívül gyorsan megközelíthető.
Az ingatlan az 5-ös főúttól mindössze 3 percre, valamint az M5-ös és az M0-s autópályától 6 percre helyezkedik el, így autóval rendkívül gyorsan megközelíthető.
Egyéb információk
• Recepció és kártyás beléptető rendszer
• Biztonsági kamerarendszer, sorompó
• Parkolóhely bérelhető az épület előtt és mögött: 10 000 Ft/hó/hely vagy 12 000 Ft/hó/hely
• Bérleti díj: 2 800 Ft/m²/hó + ÁFA
• Üzemeltetési költség: 1 670 Ft/m²/hó + ÁFA
• Minimum bérleti idő: 1 év
• Bérléshez szükséges: 2 havi kaució + 1 havi bérleti díj
• Biztonsági kamerarendszer, sorompó
• Parkolóhely bérelhető az épület előtt és mögött: 10 000 Ft/hó/hely vagy 12 000 Ft/hó/hely
• Bérleti díj: 2 800 Ft/m²/hó + ÁFA
• Üzemeltetési költség: 1 670 Ft/m²/hó + ÁFA
• Minimum bérleti idő: 1 év
• Bérléshez szükséges: 2 havi kaució + 1 havi bérleti díj